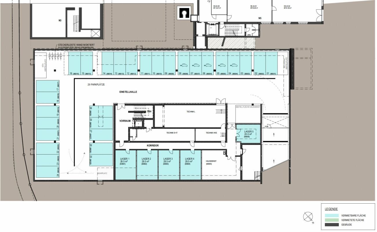
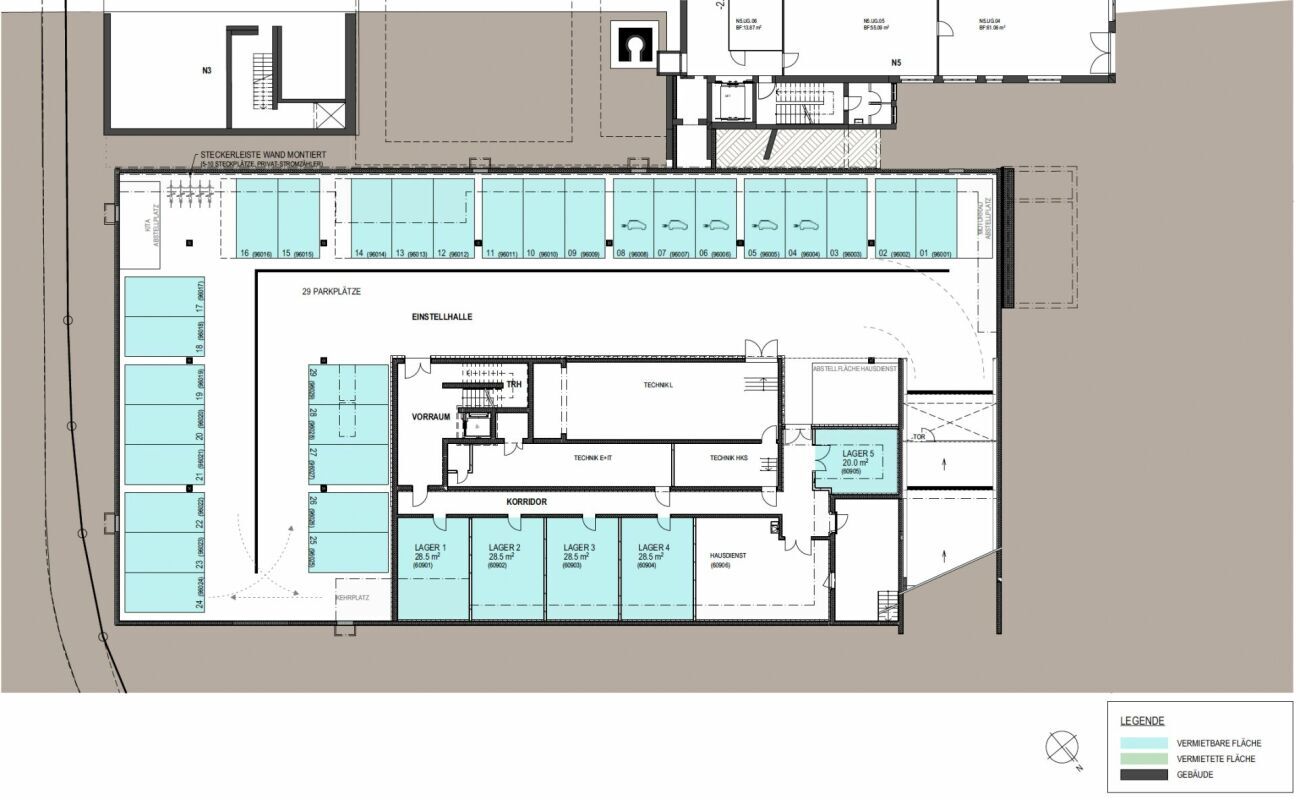
Details
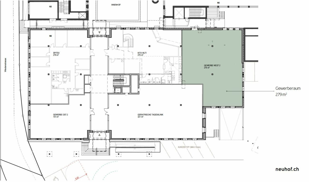
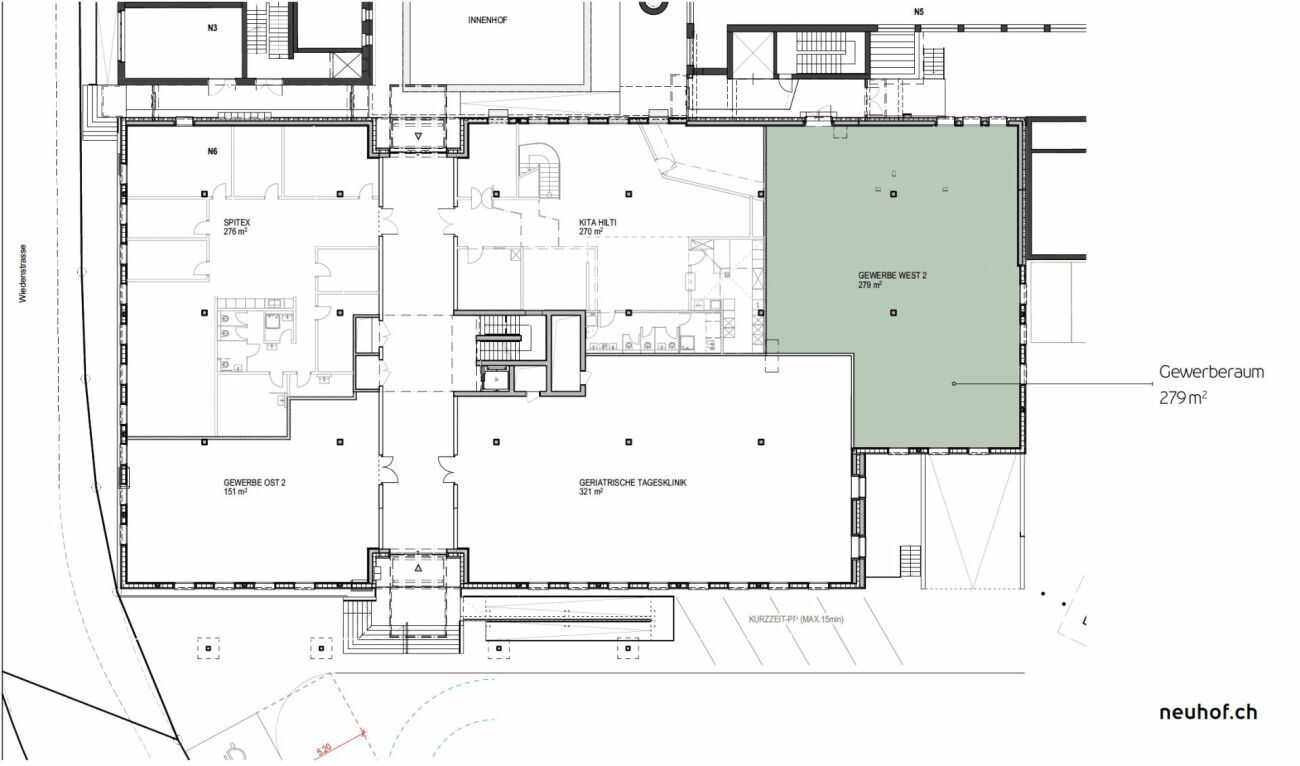
279 m2 BUSINESS-FLÄCHE FÜR UNTERNEHMEN MIT ZUKUNFT
Grunddaten
Adresse
Wiedenstrasse 50
9470 Buchs SG
Etage
-
Fläche
279 m2
Baujahr
2024
Eigenschaften
Neubau
Angebot
Mietpreis
auf Anfrage
Verfügbar ab
sofort
Beschreibung
Nach Vereinbarung vermieten wir im Neuhof Buchs an der Wiedenstrasse 50 eine Grossfläche von 279 m2.
Die zwei Gebäudeteile des Neubaus sind durch eine Passage verbunden und die Stelen vor dem zentralen Eingang lassen sich aufmerksamkeitsstark
mit Ihrem Firmennamen beschriften. Den Ausbau der Räume können Sie mitbestimmen und auf Ihre Geschäftsidee anpassen. Gerne besprechen wir mit Ihnen die entsprechenden Möglichkeiten.
Ihre Vorteile auf einen Blick
- Sehr gute, zentrale Lage mit guter ÖV-Anbindung Nähe Bahnhofstrasse Buchs und Schulen
- Grosse Tiefgarage sowie genügend Aussenparkplätze für Zulieferer und Besucher
- Bestehender Masterplan zur gezielten Weiterentwicklung des Areals für Arbeiten, Wohnen und Leben
- Entsorgungskonzepte, wachsende Anzahl E-Stationen, Solarprojekt auf den Dächern
- Sicheres, durchgängiges Areal mit beleuchteten Wegen
- Hohe Aussenraumqualität mit verschiedenen Begegnungsplätzen
- Arealwart für Unterstützung vor Ort, Reparaturen, Schneeräumung, etc.
